美容室デザイン/店舗デザイン/住宅デザイン/オフィスデザイン/設計/施工/特注家具デザイン/制作
CONCEPT
COMPANY
PROCESS
SUPPORT
WORKS
STAFF
BLOG
MAGAZINE
CONTACT
WHATS BLOG
MUKU BY BALLARAT HAIR
2020.07.06
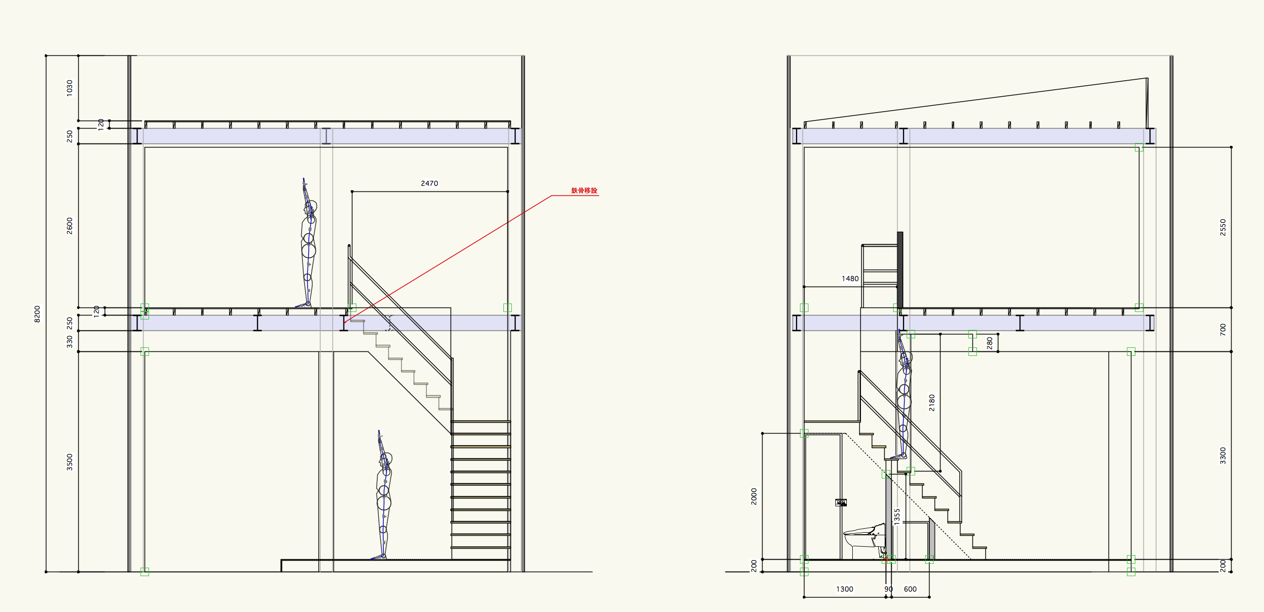
現場
WHATS inc.
株式会社ワッツ
東京都港区西麻布1-4-23 コア西麻布2F
店舗、美容室の企画プロデュース・設計デザイン・施工・内装・クリエイティブディレクション
初めて開業の方、多店舗展開の方、
新規開業に関して不安なことがあれば、無料でご相談承っております。
事業計画や不動産についても不安点がございましたら、まずは一度ご連絡ください。